Building Information

노랑풍선빌딩 | 저동 사무실 임대

서울 중구 수표로 31
  • 규모
    지하 3층 / 지상 12층
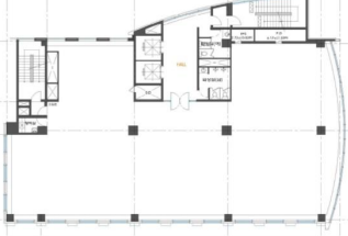
  • 기준층 면적
    임대 197평 / 전용 124평
  • 연면적
    8,747.00m²
  • 전용률
    62.94%
드로잉부동산 정보
전화 상담 : 
02-554-8966
휴대폰 : 
010-5066-2300
이메일 문의 : 
drawing@drawingoffice.co.kr
주소 : 
서울 강남구 삼성로100길 8, 4F(우경빌딩)
부동산 번호 : 
11680-2024-00318
상호 : 
(주)드로잉부동산중개법인(대표자 : 김민수)

임대 조건

기준 층 전체(전용 124평)
  • 보증금
    145,780,000원
    평당 740,000원
  • 임대료
    14,578,000원
    평당 74,000원
  • 관리비
    5,910,000원
    평당 30,000원

빌딩 정보

  • 사용 승인일
    1997-08-01
  • 천정고
    2.6m
  • 승강기 대수
    2 대
  • 냉난방 방식
    중앙냉난방
  • 주용도
    업무시설
  • 방향(출입구기준)
    남향
  • 주차정보
    방식 : 자주식
    총대수 : 95대
    무료주차 : 1대 / 임대면적 80평
    유료주차 : 월 200000원(vat 별도)

위치