Building Information

에벤에셀빌딩 | 선릉역 첫입주 사무실 임대

서울 강남구 선릉로 511
  • 규모
    지하 6층 / 지상 15층
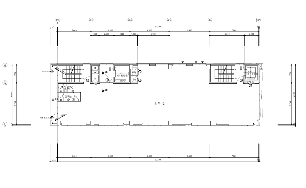
  • 기준층 면적
    임대 110평 / 전용 78평
  • 연면적
    6,533.10m²
  • 전용률
    70.91%
드로잉부동산 정보
전화 상담 : 
02-554-8966
휴대폰 : 
010-5066-2300
이메일 문의 : 
drawing@drawingoffice.co.kr
주소 : 
서울 강남구 삼성로100길 8, 4F(우경빌딩)
부동산 번호 : 
11680-2024-00318
상호 : 
(주)드로잉부동산중개법인(대표자 : 김민수)

임대 조건

기준 층 전체(전용 78평)
  • 보증금
    180,004,000원
    평당 1,636,400원
  • 임대료
    15,642,000원
    평당 142,200원
  • 관리비
    2,904,000원
    평당 26,400원

빌딩 정보

  • 사용 승인일
    2024-08-30
  • 천정고
    2.7m
  • 승강기 대수
    2 대
  • 냉난방 방식
    개별냉난방
  • 주용도
    업무시설, 근린생활시설
  • 방향(출입구기준)
    남향
  • 주차정보
    방식 : 기계식
    총대수 : 26대
    무료주차 : 1대 / 임대면적 80평
    유료주차 : 월 0원(vat 별도)

위치

에벤에셀빌딩 | 선릉역 첫입주 사무실 임대

지상 3층

  • 임대면적
    364m² / 110평
  • 전용면적
    259m² / 78.2평
  • 보증금
    18000만원
  • 임대료
    1564만원
  • 관리비
    293만원
  • 무료주차
    1
  • 인테리어
    원상복구
  • 입주시기
    즉시