Building Information

S&C타워 | 봉은사로 인테리어 사무실 임대

서울 강남구 봉은사로 457
  • 규모
    지하 4층 / 지상 15층
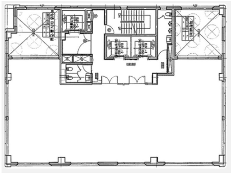
  • 기준층 면적
    임대 116.4평 / 전용 65.7평
  • 연면적
    7,251.60m²
  • 전용률
    56.44%
드로잉부동산 정보
전화 상담 : 
02-554-8966
휴대폰 : 
010-5066-2300
이메일 문의 : 
drawing@drawingoffice.co.kr
주소 : 
서울 강남구 삼성로100길 8, 4F(우경빌딩)
부동산 번호 : 
11680-2024-00318
상호 : 
(주)드로잉부동산중개법인(대표자 : 김민수)

임대 조건

기준 층 전체(전용 66평)
  • 보증금
    120,000,000원
    평당 1,030,928원
  • 임대료
    9,500,000원
    평당 81,615원
  • 관리비
    2,350,000원
    평당 20,189원

빌딩 정보

  • 사용 승인일
    2020-11-27
  • 천정고
    2.6m
  • 승강기 대수
    2 대
  • 냉난방 방식
    개별냉난방
  • 주용도
    업무시설
  • 방향(출입구기준)
    남향
  • 주차정보
    방식 : 자주식
    총대수 : 49대
    무료주차 : 1대 / 임대면적 50평
    유료주차 : 월 200000원(vat 별도)

위치

S&C타워 | 봉은사로 인테리어 사무실 임대

지상 10층

  • 임대면적
    385m² / 116.4평
  • 전용면적
    217m² / 65.7평
  • 보증금
    12000만원
  • 임대료
    950만원
  • 관리비
    235만원
  • 무료주차
    2
  • 인테리어
    원상복구
  • 입주시기
    협의가능