Building Information

포스코타워 삼성 | 9호선 봉은사로 사무실 임대

서울 강남구 봉은사로 514
  • 규모
    지하 4층 / 지상 14층
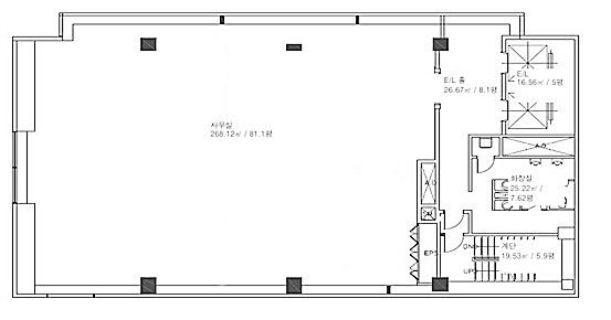
  • 기준층 면적
    임대 151.13평 / 전용 83.24평
  • 연면적
    6,612.00m²
  • 전용률
    55.08%
드로잉부동산 정보
전화 상담 : 
02-554-8966
휴대폰 : 
010-5066-2300
이메일 문의 : 
drawing@drawingoffice.co.kr
주소 : 
서울 강남구 삼성로100길 8, 4F(우경빌딩)
부동산 번호 : 
11680-2024-00318
상호 : 
(주)드로잉부동산중개법인(대표자 : 김민수)

임대 조건

기준 층 전체(전용 83평)
  • 보증금
    111,836,200원
    평당 740,000원
  • 임대료
    11,183,620원
    평당 74,000원
  • 관리비
    4,583,924원
    평당 30,331원

빌딩 정보

  • 사용 승인일
    1998-12-23
  • 천정고
    2.6m
  • 승강기 대수
    2 대
  • 냉난방 방식
    중앙냉난방
  • 주용도
    업무시설
  • 방향(출입구기준)
    북향
  • 주차정보
    방식 : 기계식
    총대수 : 57대
    무료주차 : 1대 / 임대면적 70평
    유료주차 : 월 200000원(vat 별도)

위치

포스코타워 삼성 | 9호선 봉은사로 사무실 임대

지상 4층

  • 임대면적
    500m² / 151.13평
  • 전용면적
    298m² / 90평
  • 보증금
    11183만원
  • 임대료
    1118만원
  • 관리비
    458만원
  • 무료주차
    2
  • 인테리어
    무상승계
  • 입주시기
    즉시
포스코타워 삼성 | 9호선 봉은사로 사무실 임대

연층 3,4층

  • 임대면적
    999m² / 302.26평
  • 전용면적
    595m² / 180평
  • 보증금
    22366만원
  • 임대료
    2236만원
  • 관리비
    916만원
  • 무료주차
    4
  • 인테리어
    무상승계
  • 입주시기
    즉시