Building Information

프리미어 플레이스 | 청계천 사무실 임대

서울 중구 청계천로 8
  • 규모
    지하 5층 / 지상 15층
  • 기준층 면적
    임대 314평 / 전용 167평
  • 연면적
    16,444.00m²
  • 전용률
    53.18%
드로잉부동산 정보
전화 상담 : 
02-554-8966
휴대폰 : 
010-5066-2300
이메일 문의 : 
drawing@drawingoffice.co.kr
주소 : 
서울 강남구 삼성로100길 8, 4F(우경빌딩)
부동산 번호 : 
11680-2024-00318
상호 : 
(주)드로잉부동산중개법인(대표자 : 김민수)

임대 조건

기준 층 전체(전용 167평)
  • 보증금
    288,880,000원
    평당 920,000원
  • 임대료
    28,888,000원
    평당 92,000원
  • 관리비
    10,519,000원
    평당 33,500원

빌딩 정보

  • 사용 승인일
    1992-08-31
  • 천정고
    2.8m
  • 승강기 대수
    3 대
  • 냉난방 방식
    중앙냉난방
  • 주용도
    업무시설
  • 방향(출입구기준)
    남향
  • 주차정보
    방식 : 자주식+기계식
    총대수 : 87대
    무료주차 : 1대 / 임대면적 60평
    유료주차 : 월 200000원(vat 별도)

위치

프리미어 플레이스 | 청계천 사무실 임대

지상 4층

  • 임대면적
    519m² / 157평
  • 전용면적
    281m² / 85평
  • 보증금
    14444만원
  • 임대료
    1444만원
  • 관리비
    520만원
  • 무료주차
    3
  • 인테리어
    원상복구
  • 입주시기
    즉시 협의가능
프리미어 플레이스 | 청계천 사무실 임대

연층 6,7층

  • 임대면적
    2076m² / 628평
  • 전용면적
    1104m² / 334평
  • 보증금
    57776만원
  • 임대료
    5777만원
  • 관리비
    2102만원
  • 무료주차
    10
  • 인테리어
    원상복구
  • 입주시기
    즉시 협의가능
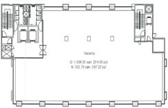
프리미어 플레이스 | 청계천 사무실 임대

지상 6층

  • 임대면적
    1038m² / 314평
  • 전용면적
    552m² / 167평
  • 보증금
    28880만원
  • 임대료
    2888만원
  • 관리비
    1051만원
  • 무료주차
    5
  • 인테리어
    원상복구
  • 입주시기
    즉시 협의가능