Building Information

한국고등교육재단빌딩 | 역삼역 오피스 임대

서울 강남구 테헤란로 211
  • 규모
    지하 5층 / 지상 19층
  • 기준층 면적
    임대 257평 / 전용 153평
  • 연면적
    15,306.64m²
  • 전용률
    59.53%
드로잉부동산 정보
전화 상담 : 
02-554-8966
휴대폰 : 
010-5066-2300
이메일 문의 : 
drawing@drawingoffice.co.kr
주소 : 
서울 강남구 삼성로100길 8, 4F(우경빌딩)
부동산 번호 : 
11680-2024-00318
상호 : 
(주)드로잉부동산중개법인(대표자 : 김민수)

임대 조건

기준 층 전체(전용 153평)
  • 보증금
    383,599,999원
    평당 1,492,607원
  • 임대료
    30,829,977원
    평당 119,961원
  • 관리비
    9,760,089원
    평당 37,977원

빌딩 정보

  • 사용 승인일
    2012-12-18
  • 천정고
    0m
  • 승강기 대수
    4 대
  • 냉난방 방식
    중앙냉난방
  • 주용도
    업무시설
  • 방향(출입구기준)
    남향
  • 주차정보
    방식 : 자주식+기계식
    총대수 : 66대
    무료주차 : 1대 / 임대면적 85평
    유료주차 : 월 0원(vat 별도)

위치

한국고등교육재단빌딩 | 역삼역 오피스 임대

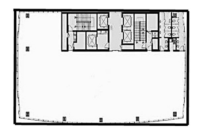
지상 8층

  • 임대면적
    849m² / 256.96평
  • 전용면적
    506m² / 153.21평
  • 보증금
    38360만원
  • 임대료
    3083만원
  • 관리비
    976만원
  • 무료주차
    4
  • 인테리어
    원상복구
  • 입주시기
    즉시