Building Information

서울경제진흥원본사 | 상암동 사무실 임대

서울 마포구 월드컵북로 400
  • 규모
    지하 4층 / 지상 14층
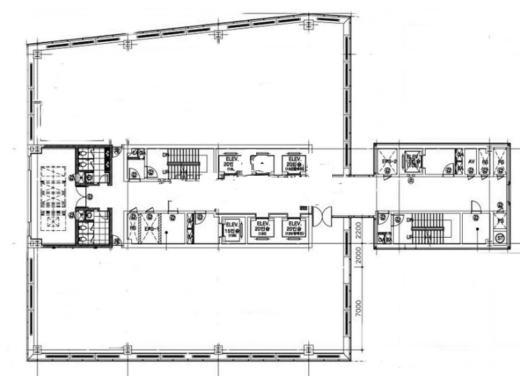
  • 기준층 면적
    임대 886.95평 / 전용 379.67평
  • 연면적
    43,663.00m²
  • 전용률
    42.81%
드로잉부동산 정보
전화 상담 : 
02-554-8966
휴대폰 : 
010-5066-2300
이메일 문의 : 
drawing@drawingoffice.co.kr
주소 : 
서울 강남구 삼성로100길 8, 4F(우경빌딩)
부동산 번호 : 
11680-2024-00318
상호 : 
(주)드로잉부동산중개법인(대표자 : 김민수)

임대 조건

기준 층 전체(전용 380평)
  • 보증금
    278,502,300원
    평당 314,000원
  • 임대료
    27,850,230원
    평당 31,400원
  • 관리비
    18,537,255원
    평당 20,900원

빌딩 정보

  • 사용 승인일
    2007-03-30
  • 천정고
    2.6m
  • 승강기 대수
    7 대
  • 냉난방 방식
    중앙냉난방
  • 주용도
    업무시설
  • 방향(출입구기준)
    동향
  • 주차정보
    방식 : 자주식
    총대수 : 335대
    무료주차 : 1대 / 임대면적 50평
    유료주차 : 월 150000원(vat 별도)

위치

서울경제진흥원본사 | 상암동 사무실 임대

연층 12층

  • 임대면적
    1460m² / 441.63평
  • 전용면적
    635m² / 192평
  • 보증금
    29045만원
  • 임대료
    1835만원
  • 관리비
    1068만원
  • 무료주차
    7
  • 인테리어
    원상복구
  • 입주시기
    즉시
서울경제진흥원본사 | 상암동 사무실 임대

지상 11층

  • 임대면적
    1428m² / 432평
  • 전용면적
    621m² / 188평
  • 보증금
    28469만원
  • 임대료
    1799만원
  • 관리비
    1047만원
  • 무료주차
    7
  • 인테리어
    원상복구
  • 입주시기
    즉시