Building Information

판교예미지빌딩 | 분당 사무실 임대

경기 성남시 분당구 판교역로192번길 14-1
  • 규모
    지하 5층 / 지상 10층
  • 기준층 면적
    임대 356평 / 전용 152평
  • 연면적
    12,777.00m²
  • 전용률
    42.7%
드로잉부동산 정보
전화 상담 : 
02-554-8966
휴대폰 : 
010-5066-2300
이메일 문의 : 
drawing@drawingoffice.co.kr
주소 : 
서울 강남구 삼성로100길 8, 4F(우경빌딩)
부동산 번호 : 
11680-2024-00318
상호 : 
(주)드로잉부동산중개법인(대표자 : 김민수)

임대 조건

기준 층 전체(전용 152평)
  • 보증금
    267,000,000원
    평당 750,000원
  • 임대료
    26,741,296원
    평당 75,116원
  • 관리비
    9,251,728원
    평당 25,988원

빌딩 정보

  • 사용 승인일
    2014-07-16
  • 천정고
    3m
  • 승강기 대수
    3 대
  • 냉난방 방식
    개별냉난방
  • 주용도
    업무시설
  • 방향(출입구기준)
    남향
  • 주차정보
    방식 : 자주식+기계식
    총대수 : 77대
    무료주차 : 1대 / 임대면적 50평
    유료주차 : 월 150000원(vat 별도)

위치

판교예미지빌딩 | 분당 사무실 임대

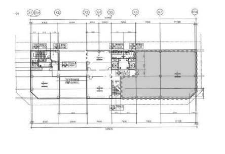
지상 3층

  • 임대면적
    1177m² / 356평
  • 전용면적
    502m² / 152평
  • 보증금
    26700만원
  • 임대료
    2670만원
  • 관리비
    925만원
  • 무료주차
    6
  • 인테리어
    원상복구
  • 입주시기
    즉시
판교예미지빌딩 | 분당 사무실 임대

연층 6,7,8층

  • 임대면적
    3531m² / 1068평
  • 전용면적
    1507m² / 456평
  • 보증금
    80100만원
  • 임대료
    8010만원
  • 관리비
    2775만원
  • 무료주차
    18
  • 인테리어
    원상복구
  • 입주시기
판교예미지빌딩 | 분당 사무실 임대

연층 4,5층

  • 임대면적
    2354m² / 712평
  • 전용면적
    1005m² / 304평
  • 보증금
    53400만원
  • 임대료
    5340만원
  • 관리비
    1850만원
  • 무료주차
    12
  • 인테리어
    원상복구
  • 입주시기
    즉시