Building Information

분당스퀘어 [ AK플라자 ] | 분당 사무실 임대

경기 성남시 분당구 황새울로360번길 42
  • 규모
    지하 6층 / 지상 20층
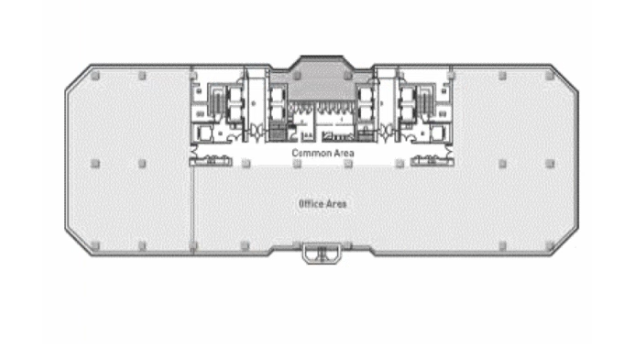
  • 기준층 면적
    임대 1084평 / 전용 468평
  • 연면적
    36,959.00m²
  • 전용률
    43.17%
드로잉부동산 정보
전화 상담 : 
02-554-8966
휴대폰 : 
010-5066-2300
이메일 문의 : 
drawing@drawingoffice.co.kr
주소 : 
서울 강남구 삼성로100길 8, 4F(우경빌딩)
부동산 번호 : 
11680-2024-00318
상호 : 
(주)드로잉부동산중개법인(대표자 : 김민수)

임대 조건

기준 층 전체(전용 468평)
  • 보증금
    737,120,000원
    평당 680,000원
  • 임대료
    73,712,000원
    평당 68,000원
  • 관리비
    34,688,000원
    평당 32,000원

빌딩 정보

  • 사용 승인일
    1997-10-08
  • 천정고
    2.7m
  • 승강기 대수
    10 대
  • 냉난방 방식
    중앙냉난방
  • 주용도
    업무시설
  • 방향(출입구기준)
    동향
  • 주차정보
    방식 : 자주식
    총대수 : 385대
    무료주차 : 1대 / 임대면적 70평
    유료주차 : 월 0원(vat 별도)

위치

분당스퀘어 [ AK플라자 ] | 분당 사무실 임대

연층 8,9층

  • 임대면적
    7167m² / 2168평
  • 전용면적
    3094m² / 936평
  • 보증금
    147420만원
  • 임대료
    14742만원
  • 관리비
    6936만원
  • 무료주차
    20
  • 인테리어
    원상복구
  • 입주시기
    즉시
분당스퀘어 [ AK플라자 ] | 분당 사무실 임대

지상 8층

  • 임대면적
    3583m² / 1084평
  • 전용면적
    1547m² / 468평
  • 보증금
    73712만원
  • 임대료
    7371만원
  • 관리비
    3468만원
  • 무료주차
    10
  • 인테리어
    원상복구
  • 입주시기
    즉시
분당스퀘어 [ AK플라자 ] | 분당 사무실 임대

지상 7층

  • 임대면적
    1792m² / 542평
  • 전용면적
    774m² / 234평
  • 보증금
    36856만원
  • 임대료
    3685만원
  • 관리비
    1734만원
  • 무료주차
    6
  • 인테리어
    원상복구
  • 입주시기
    즉시