Building Information

BLOCK77 | 강남역 병원 임대

서울 서초구 서초대로77길 17
  • 규모
    지하 5층 / 지상 15층
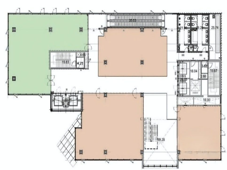
  • 기준층 면적
    임대 261평 / 전용 118평
  • 연면적
    24,942.11m²
  • 전용률
    45.21%
드로잉부동산 정보
전화 상담 : 
02-554-8966
휴대폰 : 
010-5066-2300
이메일 문의 : 
drawing@drawingoffice.co.kr
주소 : 
서울 강남구 삼성로100길 8, 4F(우경빌딩)
부동산 번호 : 
11680-2024-00318
상호 : 
(주)드로잉부동산중개법인(대표자 : 김민수)

임대 조건

기준 층 전체(전용 118평)
  • 보증금
    201,961,800원
    평당 773,800원
  • 임대료
    16,834,500원
    평당 64,500원
  • 관리비
    9,108,900원
    평당 34,900원

빌딩 정보

  • 사용 승인일
    2020-08-31
  • 천정고
    3.5m
  • 승강기 대수
    5 대
  • 냉난방 방식
    개별냉난방
  • 주용도
    업무시설,근린ㅅ애활시설
  • 방향(출입구기준)
    남향
  • 주차정보
    방식 : 자주식
    총대수 : 82대
    무료주차 : 1대 / 임대면적 80평
    유료주차 : 월 200000원(vat 별도)

위치

BLOCK77 | 강남역 병원 임대

지상 10층

  • 임대면적
    1505m² / 455.3평
  • 전용면적
    732m² / 221.4평
  • 보증금
    80000만원
  • 임대료
    4426만원
  • 관리비
    1776만원
  • 무료주차
    4
  • 인테리어
    무상승계
  • 입주시기
    즉시