Building Information

KD70 | 문정동 대형 사무실 임대

서울 송파구 정의로8길 4
  • 규모
    지하 4층 / 지상 14층
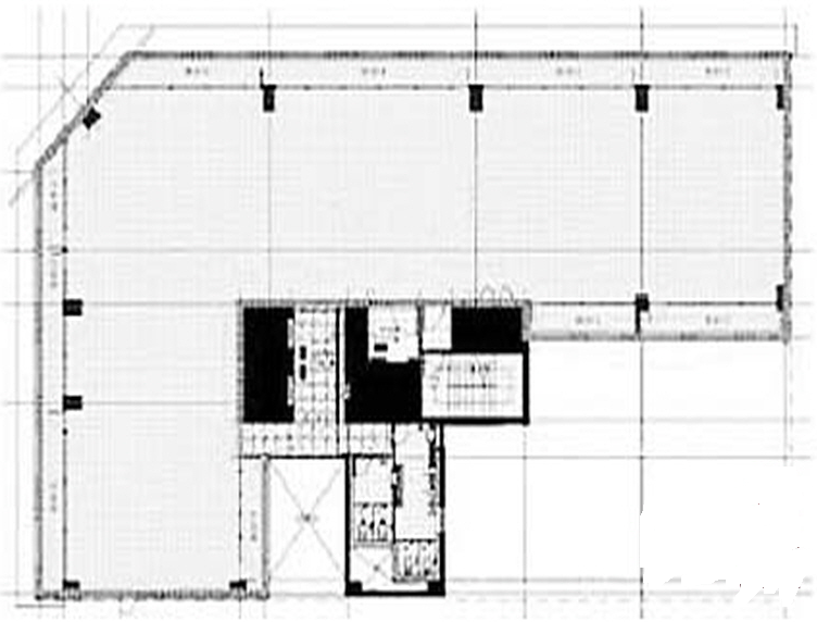
  • 기준층 면적
    임대 222.5평 / 전용 151.02평
  • 연면적
    9,976.00m²
  • 전용률
    67.87%
드로잉부동산 정보
전화 상담 : 
02-554-8966
휴대폰 : 
010-5066-2300
이메일 문의 : 
drawing@drawingoffice.co.kr
주소 : 
서울 강남구 삼성로100길 8, 4F(우경빌딩)
부동산 번호 : 
11680-2024-00318
상호 : 
(주)드로잉부동산중개법인(대표자 : 김민수)

임대 조건

기준 층 전체(전용 151평)
  • 보증금
    200,250,000원
    평당 900,000원
  • 임대료
    11,570,000원
    평당 52,000원
  • 관리비
    3,782,500원
    평당 17,000원

빌딩 정보

  • 사용 승인일
    2020-03-01
  • 천정고
    2.8m
  • 승강기 대수
    3 대
  • 냉난방 방식
    중앙냉난방
  • 주용도
    업무시설
  • 방향(출입구기준)
    북향
  • 주차정보
    방식 : 자주식
    총대수 : 45대
    무료주차 : 1대 / 임대면적 100평
    유료주차 : 월 200000원(vat 별도)

위치

KD70 | 문정동 대형 사무실 임대

지상 11,12층

  • 임대면적
    545m² / 165평
  • 전용면적
    430m² / 130평
  • 보증금
    20000만원
  • 임대료
    1155만원
  • 관리비
    400만원
  • 무료주차
    0
  • 인테리어
    원상복구
  • 입주시기
    즉시