Building Information

미래에셋센터원빌딩 | 을지로 사무실 임대

서울 중구 을지로5길 26
  • 규모
    지하 8층 / 지상 32층
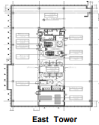
  • 기준층 면적
    임대 846평 / 전용 431.42평
  • 연면적
    168,050.00m²
  • 전용률
    51%
드로잉부동산 정보
전화 상담 : 
01076218737
휴대폰 : 
010-5066-2300
이메일 문의 : 
drawing@drawingoffice.co.kr
주소 : 
서울 강남구 삼성로100길 8, 4F(우경빌딩)
부동산 번호 : 
11680-2024-00318
상호 : 
(주)드로잉부동산중개법인(대표자 : 김민수)

임대 조건

기준 층 전체(전용 431평)
  • 보증금
    1,269,000,000원
    평당 1,500,000원
  • 임대료
    130,976,028원
    평당 154,818원
  • 관리비
    49,384,404원
    평당 58,374원

빌딩 정보

  • 사용 승인일
    2010-12-13
  • 천정고
    3m
  • 승강기 대수
    31 대
  • 냉난방 방식
    중앙냉난방
  • 주용도
    업무시설
  • 방향(출입구기준)
    북향
  • 주차정보
    방식 : 자주식
    총대수 : 736대
    무료주차 : 1대 / 임대면적 100평
    유료주차 : 월 0원(vat 별도)

위치