Building Information

파르나스타워 | 삼성동 사무실 임대

서울 강남구 테헤란로 521
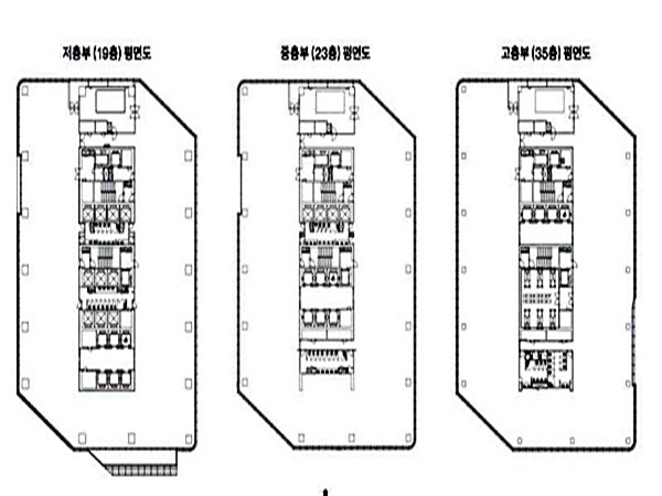
  • 규모
    지하 8층 / 지상 40층
  • 기준층 면적
    임대 1006평 / 전용 535평
  • 연면적
    104,120.77m²
  • 전용률
    53.18%
드로잉부동산 정보
전화 상담 : 
02-554-8966
휴대폰 : 
010-5066-2300
이메일 문의 : 
drawing@drawingoffice.co.kr
주소 : 
서울 강남구 삼성로100길 8, 4F(우경빌딩)
부동산 번호 : 
11680-2024-00318
상호 : 
(주)드로잉부동산중개법인(대표자 : 김민수)

임대 조건

기준 층 전체(전용 535평)
  • 보증금
    2,147,483,647원
    평당 2,340,000원
  • 임대료
    196,170,000원
    평당 195,000원
  • 관리비
    57,342,000원
    평당 57,000원

빌딩 정보

  • 사용 승인일
    2016-07-27
  • 천정고
    3m
  • 승강기 대수
    22 대
  • 냉난방 방식
    중앙냉난방
  • 주용도
    업무시설
  • 방향(출입구기준)
    남향
  • 주차정보
    방식 : 자주식
    총대수 : 464대
    무료주차 : 1대 / 임대면적 100평
    유료주차 : 월 250000원(vat 별도)

위치

파르나스타워 | 삼성동 사무실 임대

지상 17층

  • 임대면적
    665.96m² / 201평
  • 전용면적
    352.83m² / 107평
  • 보증금
    46132만원
  • 임대료
    3847만원
  • 관리비
    1148만원
  • 무료주차
    2
  • 인테리어
    원상복구
  • 입주시기
    협의가능
파르나스타워 | 삼성동 사무실 임대

지상 16층

  • 임대면적
    3256m² / 984.92평
  • 전용면적
    1726m² / 522.05평
  • 보증금
    191469만원
  • 임대료
    15956만원
  • 관리비
    5417만원
  • 무료주차
    10
  • 인테리어
    원상복구
  • 입주시기
    즉시