Building Information

타워50 | 충정로 대형 사무실 임대

서울 서대문구 충정로 50
  • 규모
    지하 4층 / 지상 17층
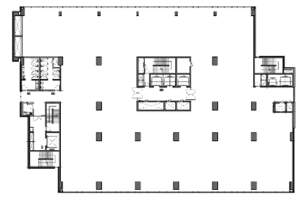
  • 기준층 면적
    임대 705.62평 / 전용 401.95평
  • 연면적
    31,895.00m²
  • 전용률
    56.96%
드로잉부동산 정보
전화 상담 : 
02-554-8966
휴대폰 : 
010-5066-2300
이메일 문의 : 
drawing@drawingoffice.co.kr
주소 : 
서울 강남구 삼성로100길 8, 4F(우경빌딩)
부동산 번호 : 
11680-2024-00318
상호 : 
(주)드로잉부동산중개법인(대표자 : 김민수)

임대 조건

기준 층 전체(전용 402평)
  • 보증금
    839,687,800원
    평당 1,190,000원
  • 임대료
    83,968,780원
    평당 119,000원
  • 관리비
    28,930,420원
    평당 41,000원

빌딩 정보

  • 사용 승인일
    1987-10-19
  • 천정고
    2.8m
  • 승강기 대수
    6 대
  • 냉난방 방식
    중앙냉난방
  • 주용도
    업무시설
  • 방향(출입구기준)
    북향
  • 주차정보
    방식 : 자주식
    총대수 : 146대
    무료주차 : 1대 / 임대면적 100평
    유료주차 : 월 200000원(vat 별도)

위치