Building Information

대동빌딩 | 삼성역 사무실 임대

서울 강남구 테헤란로108길 25
  • 규모
    지하 2층 / 지상 6층
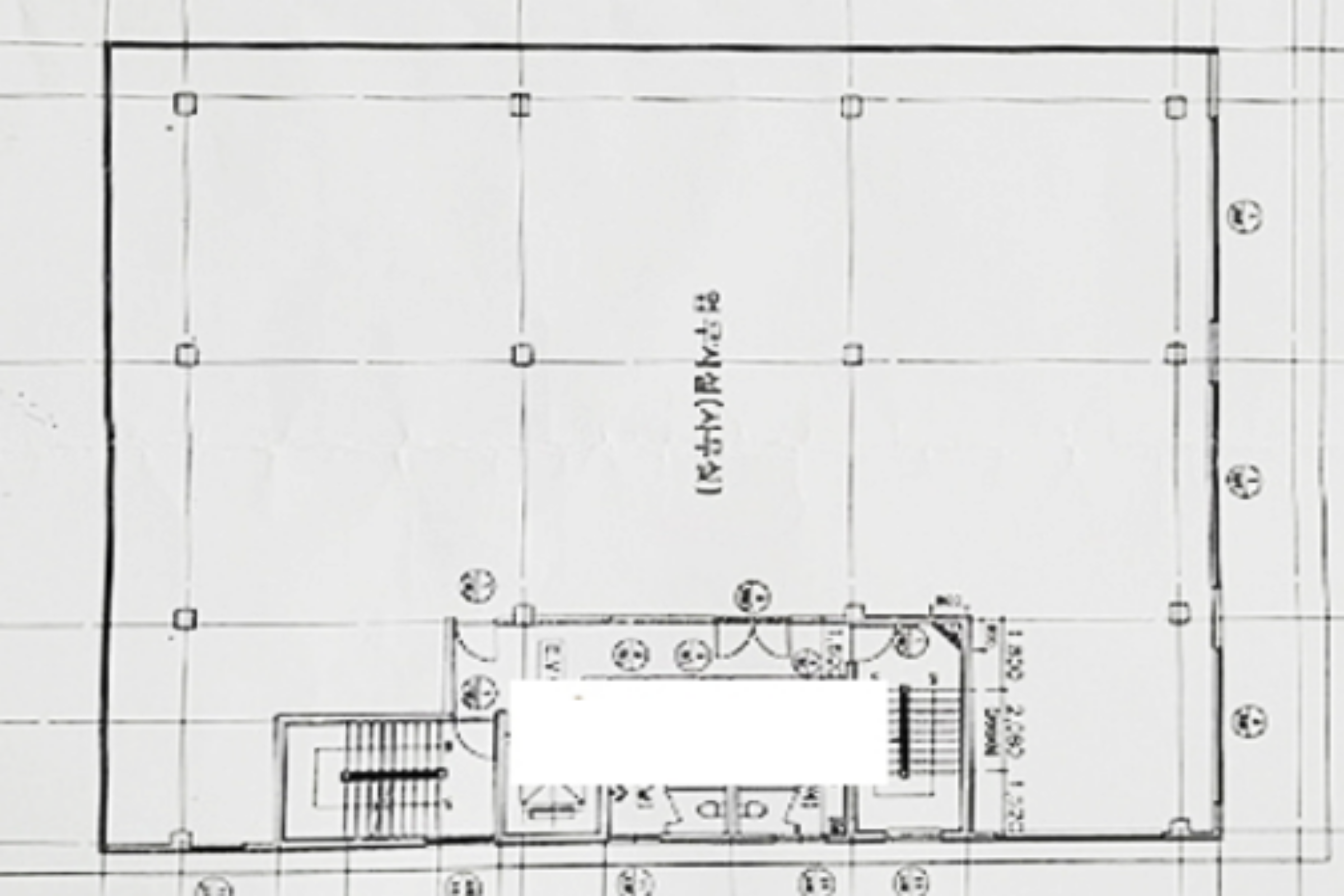
  • 기준층 면적
    임대 216평 / 전용 128평
  • 연면적
    3,740.63m²
  • 전용률
    59.26%
드로잉부동산 정보
전화 상담 : 
02-554-8966
휴대폰 : 
010-5066-2300
이메일 문의 : 
drawing@drawingoffice.co.kr
주소 : 
서울 강남구 삼성로100길 8, 4F(우경빌딩)
부동산 번호 : 
11680-2024-00318
상호 : 
(주)드로잉부동산중개법인(대표자 : 김민수)

임대 조건

기준 층 전체(전용 128평)
  • 보증금
    199,994,400원
    평당 925,900원
  • 임대료
    13,003,200원
    평당 60,200원
  • 관리비
    2,008,800원
    평당 9,300원

빌딩 정보

  • 사용 승인일
    2003-09-30
  • 천정고
    0m
  • 승강기 대수
    1 대
  • 냉난방 방식
    개별냉난방
  • 주용도
    제2종근린생활시설및업무시설
  • 방향(출입구기준)
    서향
  • 주차정보
    방식 : 기계식
    총대수 : 27대
    무료주차 : 1대 / 임대면적 40평
    유료주차 : 월 0원(vat 별도)

위치