Building Information

지밸리비즈프라자 | 구디역 사무실 임대

서울 구로구 디지털로 300
  • 규모
    지하 4층 / 지상 20층
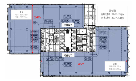
  • 기준층 면적
    임대 993.89평 / 전용 507.74평
  • 연면적
    99,337.91m²
  • 전용률
    51.09%
드로잉부동산 정보
전화 상담 : 
02-554-8966
휴대폰 : 
010-5066-2300
이메일 문의 : 
drawing@drawingoffice.co.kr
주소 : 
서울 강남구 삼성로100길 8, 4F(우경빌딩)
부동산 번호 : 
11680-2024-00318
상호 : 
(주)드로잉부동산중개법인(대표자 : 김민수)

임대 조건

기준 층 전체(전용 508평)
  • 보증금
    839,837,050원
    평당 845,000원
  • 임대료
    83,983,705원
    평당 84,500원
  • 관리비
    35,780,040원
    평당 36,000원

빌딩 정보

  • 사용 승인일
    2014-07-04
  • 천정고
    3m
  • 승강기 대수
    19 대
  • 냉난방 방식
    중앙냉난방
  • 주용도
    업무시설
  • 방향(출입구기준)
    서향
  • 주차정보
    방식 : 자주식
    총대수 : 716대
    무료주차 : 1대 / 임대면적 60평
    유료주차 : 월 130000원(vat 별도)

위치

지밸리비즈프라자 | 구디역 사무실 임대

지상 6층

  • 임대면적
    1057m² / 319.65평
  • 전용면적
    539m² / 163평
  • 보증금
    27809만원
  • 임대료
    2780만원
  • 관리비
    1182만원
  • 무료주차
    5
  • 인테리어
    원상복구
  • 입주시기
    즉시
지밸리비즈프라자 | 구디역 사무실 임대

지상 5층

  • 임대면적
    3286m² / 993.89평
  • 전용면적
    1678m² / 507.74평
  • 보증금
    86468만원
  • 임대료
    8646만원
  • 관리비
    3677만원
  • 무료주차
    14
  • 인테리어
    원상복구
  • 입주시기
    즉시