Building Information

에이스메디칼타워 | 고덕비즈밸리 사무실 임대

서울 강동구 고덕비즈밸리로4길 30
  • 규모
    지하 5층 / 지상 16층
  • 기준층 면적
    임대 330.52평 / 전용 140.48평
  • 연면적
    18,045.80m²
  • 전용률
    42.5%
드로잉부동산 정보
전화 상담 : 
02-554-8966
휴대폰 : 
010-5066-2300
이메일 문의 : 
drawing@drawingoffice.co.kr
주소 : 
서울 강남구 삼성로100길 8, 4F(우경빌딩)
부동산 번호 : 
11680-2024-00318
상호 : 
(주)드로잉부동산중개법인(대표자 : 김민수)

임대 조건

기준 층 전체(전용 140평)
  • 보증금
    158,649,600원
    평당 480,000원
  • 임대료
    13,221,000원
    평당 40,001원
  • 관리비
    6,611,000원
    평당 20,002원

빌딩 정보

  • 사용 승인일
    2023-01-22
  • 천정고
    2.7m
  • 승강기 대수
    4 대
  • 냉난방 방식
    중앙냉난방
  • 주용도
    업무시설
  • 방향(출입구기준)
    남향
  • 주차정보
    방식 : 자주식
    총대수 : 137대
    무료주차 : 1대 / 임대면적 100평
    유료주차 : 월 0원(vat 별도)

위치

에이스메디칼타워 | 고덕비즈밸리 사무실 임대

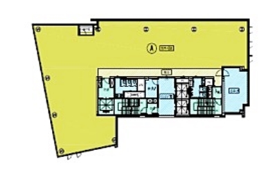
지상 6층

  • 임대면적
    1092.62m² / 331평
  • 전용면적
    464.39m² / 140평
  • 보증금
    15864만원
  • 임대료
    1322만원
  • 관리비
    661만원
  • 무료주차
    3
  • 인테리어
    원상복구
  • 입주시기
    2023-01-20 즉시