Building Information

빗썸금융타워 | 테헤란로 사무실 임대

서울 강남구 테헤란로 129
  • 규모
    지하 6층 / 지상 23층
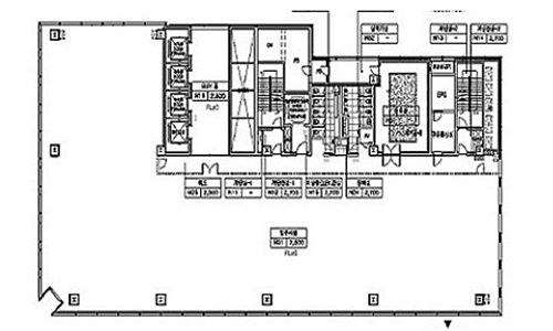
  • 기준층 면적
    임대 540평 / 전용 289평
  • 연면적
    51,126.31m²
  • 전용률
    53.52%
드로잉부동산 정보
전화 상담 : 
02-554-8966
휴대폰 : 
010-5066-2300
이메일 문의 : 
drawing@drawingoffice.co.kr
주소 : 
서울 강남구 삼성로100길 8, 4F(우경빌딩)
부동산 번호 : 
11680-2024-00318
상호 : 
(주)드로잉부동산중개법인(대표자 : 김민수)

임대 조건

기준 층 전체(전용 289평)
  • 보증금
    918,000,000원
    평당 1,700,000원
  • 임대료
    91,800,000원
    평당 170,000원
  • 관리비
    29,700,000원
    평당 55,000원

빌딩 정보

  • 사용 승인일
    2018-08-01
  • 천정고
    2.8m
  • 승강기 대수
    11 대
  • 냉난방 방식
    중앙냉난방
  • 주용도
    업무시설
  • 방향(출입구기준)
    남향
  • 주차정보
    방식 : 자주식
    총대수 : 197대
    무료주차 : 1대 / 임대면적 100평
    유료주차 : 월 0원(vat 별도)

위치

빗썸금융타워 | 테헤란로 사무실 임대

지상 14층

  • 임대면적
    704m² / 213평
  • 전용면적
    347m² / 105평
  • 보증금
    36200만원
  • 임대료
    3620만원
  • 관리비
    1100만원
  • 무료주차
    2
  • 인테리어
    원상복구
  • 입주시기
    즉시
빗썸금융타워 | 테헤란로 사무실 임대

지상 25층

  • 임대면적
    1882m² / 569.29평
  • 전용면적
    1008m² / 304.82평
  • 보증금
    96779만원
  • 임대료
    9677만원
  • 관리비
    3131만원
  • 무료주차
    5
  • 인테리어
    원상복구
  • 입주시기
    즉시
빗썸금융타워 | 테헤란로 사무실 임대

연층 23,24,25층

  • 임대면적
    5643m² / 1707평
  • 전용면적
    3021m² / 914평
  • 보증금
    290170만원
  • 임대료
    29019만원
  • 관리비
    9388만원
  • 무료주차
    15
  • 인테리어
    원상복구
  • 입주시기