Building Information

금강타워 | 대치동 사무실 임대

서울 강남구 테헤란로 410
  • 규모
    지하 7층 / 지상 21층
  • 기준층 면적
    임대 371평 / 전용 213평
  • 연면적
    24,814.00m²
  • 전용률
    57.41%
드로잉부동산 정보
전화 상담 : 
02-554-8966
휴대폰 : 
010-5066-2300
이메일 문의 : 
drawing@drawingoffice.co.kr
주소 : 
서울 강남구 삼성로100길 8, 4F(우경빌딩)
부동산 번호 : 
11680-2024-00318
상호 : 
(주)드로잉부동산중개법인(대표자 : 김민수)

임대 조건

기준 층 전체(전용 213평)
  • 보증금
    408,100,000원
    평당 1,100,000원
  • 임대료
    40,810,000원
    평당 110,000원
  • 관리비
    12,243,000원
    평당 33,000원

빌딩 정보

  • 사용 승인일
    2004-09-03
  • 천정고
    2.5m
  • 승강기 대수
    7 대
  • 냉난방 방식
    중앙냉난방
  • 주용도
    업무시설
  • 방향(출입구기준)
    북향
  • 주차정보
    방식 : 자주식
    총대수 : 215대
    무료주차 : 1대 / 임대면적 60평
    유료주차 : 월 150000원(vat 별도)

위치

금강타워 | 대치동 사무실 임대

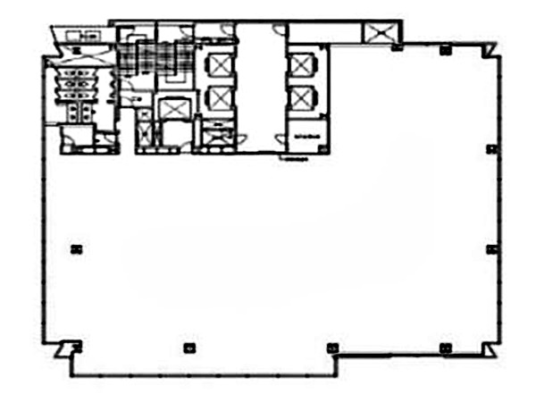
지상 16층

  • 임대면적
    1226.41m² / 371평
  • 전용면적
    704.36m² / 213평
  • 보증금
    40810만원
  • 임대료
    4081만원
  • 관리비
    1224만원
  • 무료주차
    6
  • 인테리어
    원상복구
  • 입주시기
    즉시 협의가능
금강타워 | 대치동 사무실 임대

연층 15,16층

  • 임대면적
    2453m² / 742평
  • 전용면적
    1408m² / 426평
  • 보증금
    81620만원
  • 임대료
    8162만원
  • 관리비
    2448만원
  • 무료주차
    14
  • 인테리어
    원상복구
  • 입주시기
    즉시 협의가능