Building Information

수도타워 | 신설동역 사무실 임대

서울 종로구 종로 412
  • 규모
    지하 3층 / 지상 17층
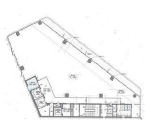
  • 기준층 면적
    임대 170.83평 / 전용 108.63평
  • 연면적
    9,681.49m²
  • 전용률
    63.59%
드로잉부동산 정보
전화 상담 : 
02-554-8966
휴대폰 : 
010-5066-2300
이메일 문의 : 
drawing@drawingoffice.co.kr
주소 : 
서울 강남구 삼성로100길 8, 4F(우경빌딩)
부동산 번호 : 
11680-2024-00318
상호 : 
(주)드로잉부동산중개법인(대표자 : 김민수)

임대 조건

기준 층 전체(전용 109평)
  • 보증금
    145,205,500원
    평당 850,000원
  • 임대료
    14,520,550원
    평당 85,000원
  • 관리비
    5,808,220원
    평당 34,000원

빌딩 정보

  • 사용 승인일
    2025-01-19
  • 천정고
    3m
  • 승강기 대수
    3 대
  • 냉난방 방식
    개별냉난방
  • 주용도
    업무시설
  • 방향(출입구기준)
    북향
  • 주차정보
    방식 : 자주식
    총대수 : 42대
    무료주차 : 1대 / 임대면적 0평
    유료주차 : 월 0원(vat 별도)

위치