Building Information

오로라스퀘어 (KOTITI과천사옥) | 과천 대형 오피스 임대

경기 과천시 과천대로7나길 48
  • 규모
    지하 4층 / 지상 6층
  • 기준층 면적
    임대 625.15평 / 전용 358.58평
  • 연면적
    51,061.00m²
  • 전용률
    57.36%
드로잉부동산 정보
전화 상담 : 
02-554-8966
휴대폰 : 
010-5066-2300
이메일 문의 : 
drawing@drawingoffice.co.kr
주소 : 
서울 강남구 삼성로100길 8, 4F(우경빌딩)
부동산 번호 : 
11680-2024-00318
상호 : 
(주)드로잉부동산중개법인(대표자 : 김민수)

임대 조건

기준 층 전체(전용 359평)
  • 보증금
    343,832,500원
    평당 550,000원
  • 임대료
    34,383,250원
    평당 55,000원
  • 관리비
    7,501,800원
    평당 12,000원

빌딩 정보

  • 사용 승인일
    2023-08-20
  • 천정고
    2.8m
  • 승강기 대수
    3 대
  • 냉난방 방식
    개별냉난방
  • 주용도
    업무시설
  • 방향(출입구기준)
    동향
  • 주차정보
    방식 : 자주식
    총대수 : 305대
    무료주차 : 1대 / 임대면적 0평
    유료주차 : 월 0원(vat 별도)

위치

오로라스퀘어 (KOTITI과천사옥) | 과천 대형 오피스 임대

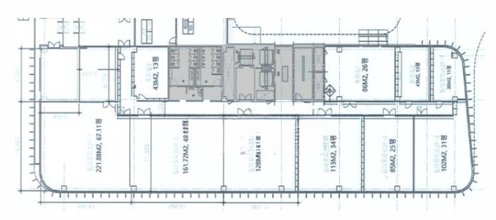
연층 3,4층

  • 임대면적
    2067m² / 625.15평
  • 전용면적
    1185m² / 358.58평
  • 보증금
    34383만원
  • 임대료
    3438만원
  • 관리비
    750만원
  • 무료주차
    0
  • 인테리어
    원상복구
  • 입주시기
    즉시