Building Information

알에프텍 신사옥 | 고덕비즈밸리 사무실 임대

서울 강동구 고덕비즈밸리로2가길 21
  • 규모
    지하 5층 / 지상 15층
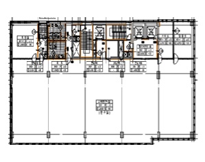
  • 기준층 면적
    임대 336.04평 / 전용 153.19평
  • 연면적
    15,255.00m²
  • 전용률
    45.59%
드로잉부동산 정보
전화 상담 : 
02-554-8966
휴대폰 : 
010-5066-2300
이메일 문의 : 
drawing@drawingoffice.co.kr
주소 : 
서울 강남구 삼성로100길 8, 4F(우경빌딩)
부동산 번호 : 
11680-2024-00318
상호 : 
(주)드로잉부동산중개법인(대표자 : 김민수)

임대 조건

기준 층 전체(전용 153평)
  • 보증금
    329,319,200원
    평당 980,000원
  • 임대료
    32,931,920원
    평당 98,000원
  • 관리비
    8,401,000원
    평당 25,000원

빌딩 정보

  • 사용 승인일
    2022-12-01
  • 천정고
    2.8m
  • 승강기 대수
    2 대
  • 냉난방 방식
    중앙냉난방
  • 주용도
    업무시설
  • 방향(출입구기준)
    남향
  • 주차정보
    방식 : 자주식
    총대수 : 99대
    무료주차 : 1대 / 임대면적 70평
    유료주차 : 월 200000원(vat 별도)

위치