Building Information

영창디지털타워 | 성수역 사무실 임대

서울 성동구 뚝섬로1길 63
  • 규모
    지하 5층 / 지상 16층
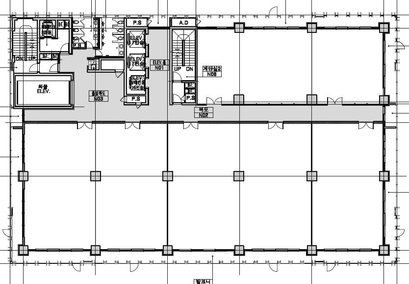
  • 기준층 면적
    임대 516평 / 전용 235평
  • 연면적
    30,407.12m²
  • 전용률
    45.54%
드로잉부동산 정보
전화 상담 : 
02-554-8966
휴대폰 : 
010-5066-2300
이메일 문의 : 
drawing@drawingoffice.co.kr
주소 : 
서울 강남구 삼성로100길 8, 4F(우경빌딩)
부동산 번호 : 
11680-2024-00318
상호 : 
(주)드로잉부동산중개법인(대표자 : 김민수)

임대 조건

기준 층 전체(전용 235평)
  • 보증금
    438,600,000원
    평당 850,000원
  • 임대료
    37,668,000원
    평당 73,000원
  • 관리비
    6,192,000원
    평당 12,000원

빌딩 정보

  • 사용 승인일
    2017-12-29
  • 천정고
    2.7m
  • 승강기 대수
    4 대
  • 냉난방 방식
    개별냉난방
  • 주용도
    지식산업센터
  • 방향(출입구기준)
    남향
  • 주차정보
    방식 : 자주식
    총대수 : 194대
    무료주차 : 1대 / 임대면적 60평
    유료주차 : 월 0원(vat 별도)

위치

영창디지털타워 | 성수역 사무실 임대

지상 10층

  • 임대면적
    1705.78m² / 516평
  • 전용면적
    776.86m² / 235평
  • 보증금
    43860만원
  • 임대료
    3767만원
  • 관리비
    619만원
  • 무료주차
    9
  • 인테리어
    무상승계
  • 입주시기
    즉시 협의가능
영창디지털타워 | 성수역 사무실 임대

지상 9층

  • 임대면적
    853m² / 258평
  • 전용면적
    390m² / 118평
  • 보증금
    21930만원
  • 임대료
    1883만원
  • 관리비
    309만원
  • 무료주차
    5
  • 인테리어
    원상복구
  • 입주시기
    즉시