Building Information

금강타워3 | 삼성동 사무실 임대

서울 강남구 테헤란로87길 35
  • 규모
    지하 4층 / 지상 10층
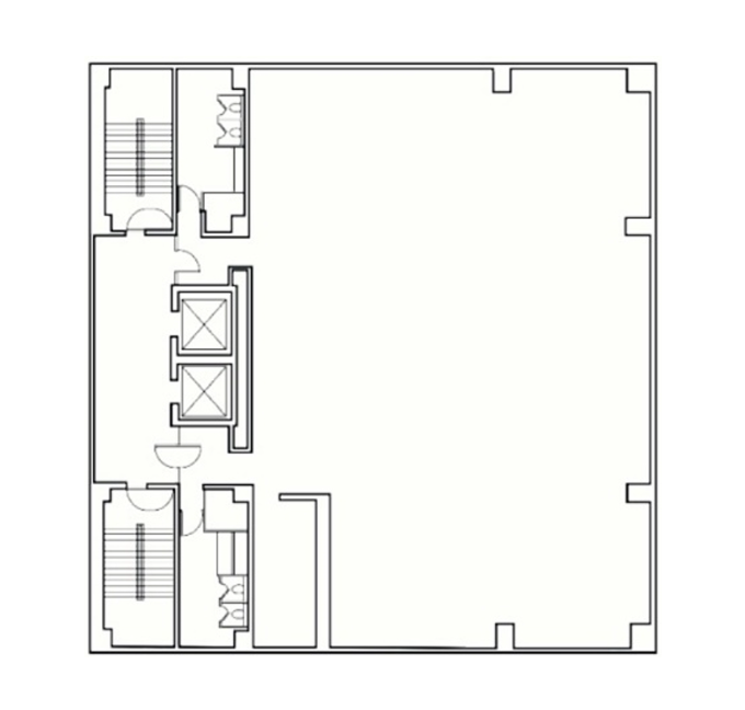
  • 기준층 면적
    임대 197평 / 전용 118평
  • 연면적
    9,401.74m²
  • 전용률
    59.9%
드로잉부동산 정보
전화 상담 : 
02-554-8966
휴대폰 : 
010-5066-2300
이메일 문의 : 
drawing@drawingoffice.co.kr
주소 : 
서울 강남구 삼성로100길 8, 4F(우경빌딩)
부동산 번호 : 
11680-2024-00318
상호 : 
(주)드로잉부동산중개법인(대표자 : 김민수)

임대 조건

기준 층 전체(전용 118평)
  • 보증금
    236,400,000원
    평당 1,200,000원
  • 임대료
    23,640,000원
    평당 120,000원
  • 관리비
    8,274,000원
    평당 42,000원

빌딩 정보

  • 사용 승인일
    1993-01-28
  • 천정고
    0m
  • 승강기 대수
    2 대
  • 냉난방 방식
    중앙냉난방
  • 주용도
    업무시설
  • 방향(출입구기준)
    동향
  • 주차정보
    방식 : 자주식
    총대수 : 126대
    무료주차 : 1대 / 임대면적 50평
    유료주차 : 월 0원(vat 별도)

위치

금강타워3 | 삼성동 사무실 임대

지상 3층

  • 임대면적
    651.2m² / 197평
  • 전용면적
    390.1m² / 118평
  • 보증금
    23654만원
  • 임대료
    2365만원
  • 관리비
    827만원
  • 무료주차
    3
  • 인테리어
    원상복구
  • 입주시기
    협의가능
금강타워3 | 삼성동 사무실 임대

지상 9층

  • 임대면적
    651.6m² / 197평
  • 전용면적
    393m² / 119평
  • 보증금
    23654만원
  • 임대료
    2365만원
  • 관리비
    828만원
  • 무료주차
    4
  • 인테리어
    원상복구
  • 입주시기
    협의가능