Building Information

쿠쿠강동빌딩 | 고덕비즈밸리 신축 사무실 임대

서울 강동구 고덕비즈밸리로 34
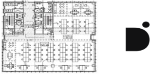
  • 규모
    지하 5층 / 지상 11층
  • 기준층 면적
    임대 407.46평 / 전용 149.68평
  • 연면적
    13,094.74m²
  • 전용률
    36.73%
드로잉부동산 정보
전화 상담 : 
02-554-8966
휴대폰 : 
010-5066-2300
이메일 문의 : 
drawing@drawingoffice.co.kr
주소 : 
서울 강남구 삼성로100길 8, 4F(우경빌딩)
부동산 번호 : 
11680-2024-00318
상호 : 
(주)드로잉부동산중개법인(대표자 : 김민수)

임대 조건

기준 층 전체(전용 150평)
  • 보증금
    180,912,240원
    평당 444,000원
  • 임대료
    15,076,020원
    평당 37,000원
  • 관리비
    8,149,200원
    평당 20,000원

빌딩 정보

  • 사용 승인일
    2025-06-01
  • 천정고
    2.8m
  • 승강기 대수
    4 대
  • 냉난방 방식
    개별냉난방
  • 주용도
    업무시설
  • 방향(출입구기준)
    남향
  • 주차정보
    방식 : 자주식
    총대수 : 122대
    무료주차 : 1대 / 임대면적 0평
    유료주차 : 월 0원(vat 별도)

위치

쿠쿠강동빌딩 | 고덕비즈밸리 신축 사무실 임대

연층 6층,7층,8층,9층층

  • 임대면적
    5388m² / 1629.84평
  • 전용면적
    1979m² / 598.72평
  • 보증금
    72364만원
  • 임대료
    6030만원
  • 관리비
    3259만원
  • 무료주차
    0
  • 인테리어
    원상복구
  • 입주시기
    즉시 협의가능