Building Information

뉴브클라우드힐스 | 마곡 신축 오피스 임대

서울 강서구 마곡중앙8로1길 81
  • 규모
    지하 4층 / 지상 11층
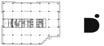
  • 기준층 면적
    임대 1211.85평 / 전용 555.47평
  • 연면적
    99,651.66m²
  • 전용률
    45.84%
드로잉부동산 정보
전화 상담 : 
02-554-8966
휴대폰 : 
010-5066-2300
이메일 문의 : 
drawing@drawingoffice.co.kr
주소 : 
서울 강남구 삼성로100길 8, 4F(우경빌딩)
부동산 번호 : 
11680-2024-00318
상호 : 
(주)드로잉부동산중개법인(대표자 : 김민수)

임대 조건

기준 층 전체(전용 555평)
  • 보증금
    630,162,000원
    평당 520,000원
  • 임대료
    63,016,000원
    평당 52,000원
  • 관리비
    0원
    평당 0원

빌딩 정보

  • 사용 승인일
    2025-06-01
  • 천정고
    2.8m
  • 승강기 대수
    8 대
  • 냉난방 방식
    중앙냉난방
  • 주용도
    업무시설
  • 방향(출입구기준)
    북향
  • 주차정보
    방식 : 자주식
    총대수 : 875대
    무료주차 : 1대 / 임대면적 50평
    유료주차 : 월 0원(vat 별도)

위치

뉴브클라우드힐스 | 마곡 신축 오피스 임대

연층 8층,9층,10층층

  • 임대면적
    10910m² / 3300.32평
  • 전용면적
    5001m² / 1512.75평
  • 보증금
    171600만원
  • 임대료
    17160만원
  • 관리비
    0만원
  • 무료주차
    66
  • 인테리어
    원상복구
  • 입주시기
    즉시 협의가능