Building Information

씨티센터타워 | 을지로3가역 대형 사무실 임대

서울 중구 수표로 34
  • 규모
    지하 2층 / 지상 18층
  • 기준층 면적
    임대 679평 / 전용 490평
  • 연면적
    37,266.61m²
  • 전용률
    72.16%
드로잉부동산 정보
전화 상담 : 
02-554-8966
휴대폰 : 
010-5066-2300
이메일 문의 : 
drawing@drawingoffice.co.kr
주소 : 
서울 강남구 삼성로100길 8, 4F(우경빌딩)
부동산 번호 : 
11680-2024-00318
상호 : 
(주)드로잉부동산중개법인(대표자 : 김민수)

임대 조건

기준 층 전체(전용 490평)
  • 보증금
    814,800,000원
    평당 1,200,000원
  • 임대료
    81,480,000원
    평당 120,000원
  • 관리비
    30,555,000원
    평당 45,000원

빌딩 정보

  • 사용 승인일
    1969-12-05
  • 천정고
    2.6m
  • 승강기 대수
    7 대
  • 냉난방 방식
    중앙냉난방
  • 주용도
    업무시설
  • 방향(출입구기준)
    남향
  • 주차정보
    방식 : 자주식
    총대수 : 91대
    무료주차 : 1대 / 임대면적 124평
    유료주차 : 월 200000원(vat 별도)

위치

씨티센터타워 | 을지로3가역 대형 사무실 임대

지상 3층

  • 임대면적
    2069m² / 625.89평
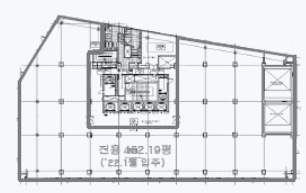
  • 전용면적
    1495m² / 452.19평
  • 보증금
    75106만원
  • 임대료
    7510만원
  • 관리비
    2816만원
  • 무료주차
    5
  • 인테리어
    원상복구
  • 입주시기
    즉시