Building Information

서울N스퀘어 | 명동역 사무실 임대

서울 중구 퇴계로 110
  • 규모
    지하 4층 / 지상 15층
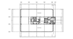
  • 기준층 면적
    임대 317.64평 / 전용 161.58평
  • 연면적
    16,368.03m²
  • 전용률
    50.87%
드로잉부동산 정보
전화 상담 : 
02-554-8966
휴대폰 : 
010-5066-2300
이메일 문의 : 
drawing@drawingoffice.co.kr
주소 : 
서울 강남구 삼성로100길 8, 4F(우경빌딩)
부동산 번호 : 
11680-2024-00318
상호 : 
(주)드로잉부동산중개법인(대표자 : 김민수)

임대 조건

기준 층 전체(전용 162평)
  • 보증금
    339,874,800원
    평당 1,070,000원
  • 임대료
    33,987,480원
    평당 107,000원
  • 관리비
    13,340,880원
    평당 42,000원

빌딩 정보

  • 사용 승인일
    1984-02-24
  • 천정고
    2.6m
  • 승강기 대수
    3 대
  • 냉난방 방식
    중앙냉난방
  • 주용도
    업무시설
  • 방향(출입구기준)
    북향
  • 주차정보
    방식 : 자주식+기계식
    총대수 : 68대
    무료주차 : 1대 / 임대면적 100평
    유료주차 : 월 220000원(vat 별도)

위치