Building Information

알레르망타워 | 테헤란로 사무실 임대

서울 강남구 테헤란로 412
  • 규모
    지하 6층 / 지상 19층
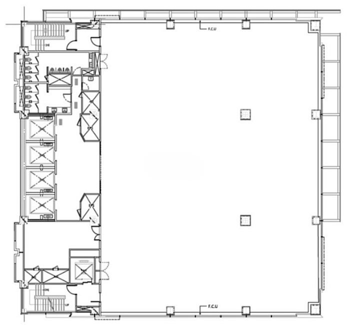
  • 기준층 면적
    임대 443.24평 / 전용 216.62평
  • 연면적
    26,388.79m²
  • 전용률
    48.87%
드로잉부동산 정보
전화 상담 : 
02-554-8966
휴대폰 : 
010-5066-2300
이메일 문의 : 
drawing@drawingoffice.co.kr
주소 : 
서울 강남구 삼성로100길 8, 4F(우경빌딩)
부동산 번호 : 
11680-2024-00318
상호 : 
(주)드로잉부동산중개법인(대표자 : 김민수)

임대 조건

기준 층 전체(전용 217평)
  • 보증금
    629,400,800원
    평당 1,420,000원
  • 임대료
    62,940,080원
    평당 142,000원
  • 관리비
    19,059,320원
    평당 43,000원

빌딩 정보

  • 사용 승인일
    2000-08-30
  • 천정고
    2.7m
  • 승강기 대수
    5 대
  • 냉난방 방식
    중앙냉난방
  • 주용도
    업무시설
  • 방향(출입구기준)
    북향
  • 주차정보
    방식 : 자주식
    총대수 : 195대
    무료주차 : 1대 / 임대면적 70평
    유료주차 : 월 200000원(vat 별도)

위치

알레르망타워 | 테헤란로 사무실 임대

지상 12층

  • 임대면적
    971.23m² / 294평
  • 전용면적
    433.81m² / 131평
  • 보증금
    41720만원
  • 임대료
    4172만원
  • 관리비
    1263만원
  • 무료주차
    4
  • 인테리어
    원상복구
  • 입주시기
    즉시
알레르망타워 | 테헤란로 사무실 임대

지상 16층

  • 임대면적
    288m² / 87평
  • 전용면적
    139m² / 42평
  • 보증금
    12528만원
  • 임대료
    1252만원
  • 관리비
    374만원
  • 무료주차
    0
  • 인테리어
    원상복구
  • 입주시기