Building Information

명동N빌딩 | 명동 병원 임대

서울 중구 남대문로 90
  • 규모
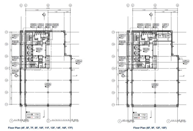
    지하 3층 / 지상 19층
  • 기준층 면적
    임대 232.39평 / 전용 147.07평
  • 연면적
    13,749.00m²
  • 전용률
    63.29%
드로잉부동산 정보
전화 상담 : 
02-554-8966
휴대폰 : 
010-5066-2300
이메일 문의 : 
drawing@drawingoffice.co.kr
주소 : 
서울 강남구 삼성로100길 8, 4F(우경빌딩)
부동산 번호 : 
11680-2024-00318
상호 : 
(주)드로잉부동산중개법인(대표자 : 김민수)

임대 조건

기준 층 전체(전용 147평)
  • 보증금
    334,641,600원
    평당 1,440,000원
  • 임대료
    33,464,160원
    평당 144,000원
  • 관리비
    9,295,600원
    평당 40,000원

빌딩 정보

  • 사용 승인일
    1971-02-22
  • 천정고
    3.3m
  • 승강기 대수
    3 대
  • 냉난방 방식
    중앙냉난방
  • 주용도
    업무시설
  • 방향(출입구기준)
    남향
  • 주차정보
    방식 : 자주식+기계식
    총대수 : 21대
    무료주차 : 1대 / 임대면적 100평
    유료주차 : 월 200000원(vat 별도)

위치

명동N빌딩 | 명동 병원 임대

연층 12~19층

  • 임대면적
    5754m² / 1740.6평
  • 전용면적
    3617m² / 1094.06평
  • 보증금
    250560만원
  • 임대료
    25804만원
  • 관리비
    7168만원
  • 무료주차
    0
  • 인테리어
    원상복구
  • 입주시기
명동N빌딩 | 명동 병원 임대

지상 17층

  • 임대면적
    768m² / 232.39평
  • 전용면적
    486m² / 147.07평
  • 보증금
    33464만원
  • 임대료
    3446만원
  • 관리비
    955만원
  • 무료주차
    1
  • 인테리어
    원상복구
  • 입주시기
    협의가능
명동N빌딩 | 명동 병원 임대

지상 18층

  • 임대면적
    727m² / 219.84평
  • 전용면적
    456m² / 137.96평
  • 보증금
    31656만원
  • 임대료
    3260만원
  • 관리비
    905만원
  • 무료주차
    1
  • 인테리어
    원상복구
  • 입주시기
    협의가능
명동N빌딩 | 명동 병원 임대

지상 19층

  • 임대면적
    501m² / 151.52평
  • 전용면적
    304m² / 91.9평
  • 보증금
    21818만원
  • 임대료
    5579만원
  • 관리비
    624만원
  • 무료주차
    1
  • 인테리어
    원상복구
  • 입주시기
    협의가능