Building Information

로즈데일빌딩 | 수서역 사무실 임대

서울 강남구 광평로 280
  • 규모
    지하 8층 / 지상 20층
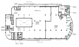
  • 기준층 면적
    임대 1544.68평 / 전용 771.37평
  • 연면적
    97,526.05m²
  • 전용률
    49.94%
드로잉부동산 정보
전화 상담 : 
02-554-8966
휴대폰 : 
010-5066-2300
이메일 문의 : 
drawing@drawingoffice.co.kr
주소 : 
서울 강남구 삼성로100길 8, 4F(우경빌딩)
부동산 번호 : 
11680-2024-00318
상호 : 
(주)드로잉부동산중개법인(대표자 : 김민수)

임대 조건

기준 층 전체(전용 771평)
  • 보증금
    1,282,084,400원
    평당 830,000원
  • 임대료
    128,208,440원
    평당 83,000원
  • 관리비
    57,153,160원
    평당 37,000원

빌딩 정보

  • 사용 승인일
    2000-08-22
  • 천정고
    2.8m
  • 승강기 대수
    13 대
  • 냉난방 방식
    중앙냉난방
  • 주용도
    업무시설
  • 방향(출입구기준)
    남향
  • 주차정보
    방식 : 자주식
    총대수 : 1004대
    무료주차 : 1대 / 임대면적 50평
    유료주차 : 월 80000원(vat 별도)

위치

로즈데일빌딩 | 수서역 사무실 임대

지상 9층

  • 임대면적
    4047m² / 1224.29평
  • 전용면적
    2326m² / 703.71평
  • 보증금
    100000만원
  • 임대료
    7713만원
  • 관리비
    4529만원
  • 무료주차
    24
  • 인테리어
    원상복구
  • 입주시기
    즉시