Building Information

서우빌딩 | 양재역 오피스 임대

서울 강남구 강남대로 314
  • 규모
    지하 3층 / 지상 15층
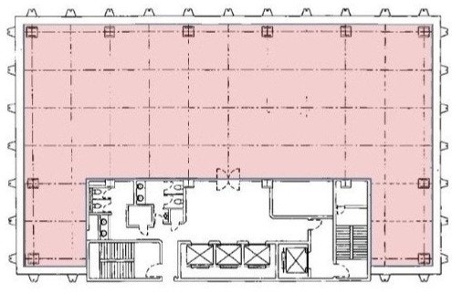
  • 기준층 면적
    임대 255.72평 / 전용 140평
  • 연면적
    13,427.23m²
  • 전용률
    54.75%
드로잉부동산 정보
전화 상담 : 
02-554-8966
휴대폰 : 
010-5066-2300
이메일 문의 : 
drawing@drawingoffice.co.kr
주소 : 
서울 강남구 삼성로100길 8, 4F(우경빌딩)
부동산 번호 : 
11680-2024-00318
상호 : 
(주)드로잉부동산중개법인(대표자 : 김민수)

임대 조건

기준 층 전체(전용 140평)
  • 보증금
    230,148,000원
    평당 900,000원
  • 임대료
    21,736,200원
    평당 85,000원
  • 관리비
    11,507,400원
    평당 45,000원

빌딩 정보

  • 사용 승인일
    1985-05-01
  • 천정고
    2.6m
  • 승강기 대수
    4 대
  • 냉난방 방식
    중앙냉난방
  • 주용도
    업무시설
  • 방향(출입구기준)
    남향
  • 주차정보
    방식 : 자주식+기계식
    총대수 : 250대
    무료주차 : 1대 / 임대면적 45평
    유료주차 : 월 160000원(vat 별도)

위치

서우빌딩 | 양재역 오피스 임대

지상 7층

  • 임대면적
    421m² / 127.5평
  • 전용면적
    231m² / 70평
  • 보증금
    11475만원
  • 임대료
    1084만원
  • 관리비
    574만원
  • 무료주차
    3
  • 인테리어
    원상복구
  • 입주시기
    협의가능