Building Information

디자이너크럽빌딩 | 압구정로데오역 사무실 임대

서울 강남구 선릉로 818
  • 규모
    지하 4층 / 지상 6층
  • 기준층 면적
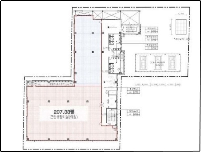
    임대 398.61평 / 전용 207.33평
  • 연면적
    14,588.00m²
  • 전용률
    52.01%
드로잉부동산 정보
전화 상담 : 
02-554-8966
휴대폰 : 
010-5066-2300
이메일 문의 : 
drawing@drawingoffice.co.kr
주소 : 
서울 강남구 삼성로100길 8, 4F(우경빌딩)
부동산 번호 : 
11680-2024-00318
상호 : 
(주)드로잉부동산중개법인(대표자 : 김민수)

임대 조건

기준 층 전체(전용 207평)
  • 보증금
    414,599,842원
    평당 1,040,114원
  • 임대료
    41,459,825원
    평당 104,011원
  • 관리비
    8,293,081원
    평당 20,805원

빌딩 정보

  • 사용 승인일
    2000-07-27
  • 천정고
    3m
  • 승강기 대수
    4 대
  • 냉난방 방식
    중앙냉난방
  • 주용도
    업무시설,근린생활시설
  • 방향(출입구기준)
    남향
  • 주차정보
    방식 : 자주식
    총대수 : 126대
    무료주차 : 1대 / 임대면적 100평
    유료주차 : 월 200000원(vat 별도)

위치

디자이너크럽빌딩 | 압구정로데오역 사무실 임대

지상 3층

  • 임대면적
    1318m² / 398.61평
  • 전용면적
    685m² / 207.33평
  • 보증금
    41460만원
  • 임대료
    4146만원
  • 관리비
    829만원
  • 무료주차
    4
  • 인테리어
    원상복구
  • 입주시기
    즉시