Building Information

태석빌딩 | 양재동 사무실 임대

서울 서초구 마방로10길 5
  • 규모
    지하 5층 / 지상 18층
  • 기준층 면적
    임대 280.38평 / 전용 130.85평
  • 연면적
    17,953.00m²
  • 전용률
    46.67%
드로잉부동산 정보
전화 상담 : 
02-554-8966
휴대폰 : 
010-5066-2300
이메일 문의 : 
drawing@drawingoffice.co.kr
주소 : 
서울 강남구 삼성로100길 8, 4F(우경빌딩)
부동산 번호 : 
11680-2024-00318
상호 : 
(주)드로잉부동산중개법인(대표자 : 김민수)

임대 조건

기준 층 전체(전용 131평)
  • 보증금
    120,563,400원
    평당 430,000원
  • 임대료
    12,056,340원
    평당 43,000원
  • 관리비
    7,570,260원
    평당 27,000원

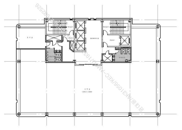
빌딩 정보

  • 사용 승인일
    1995-09-01
  • 천정고
    2.8m
  • 승강기 대수
    4 대
  • 냉난방 방식
    중앙냉난방
  • 주용도
    업무시설
  • 방향(출입구기준)
    남향
  • 주차정보
    방식 : 자주식+기계식
    총대수 : 127대
    무료주차 : 1대 / 임대면적 70평
    유료주차 : 월 150000원(vat 별도)

위치

태석빌딩 | 양재동 사무실 임대

지상 9층

  • 임대면적
    762m² / 230.38평
  • 전용면적
    430m² / 130평
  • 보증금
    13783만원
  • 임대료
    1373만원
  • 관리비
    1023만원
  • 무료주차
    4
  • 인테리어
    원상복구
  • 입주시기
    즉시
태석빌딩 | 양재동 사무실 임대

지상 10층

  • 임대면적
    927m² / 280.38평
  • 전용면적
    430m² / 130평
  • 보증금
    13738만원
  • 임대료
    1373만원
  • 관리비
    1023만원
  • 무료주차
    4
  • 인테리어
    원상복구
  • 입주시기
    즉시