Building Information

로얄토토빌딩 | 학동역 인테리어 사무실 임대

서울 강남구 논현로 709
  • 규모
    지하 3층 / 지상 7층
  • 기준층 면적
    임대 189평 / 전용 115평
  • 연면적
    4,839.18m²
  • 전용률
    60.85%
드로잉부동산 정보
전화 상담 : 
02-554-8966
휴대폰 : 
010-5066-2300
이메일 문의 : 
drawing@drawingoffice.co.kr
주소 : 
서울 강남구 삼성로100길 8, 4F(우경빌딩)
부동산 번호 : 
11680-2024-00318
상호 : 
(주)드로잉부동산중개법인(대표자 : 김민수)

임대 조건

기준 층 전체(전용 115평)
  • 보증금
    299,999,889원
    평당 1,587,301원
  • 임대료
    17,949,897원
    평당 94,973원
  • 관리비
    5,289,921원
    평당 27,989원

빌딩 정보

  • 사용 승인일
    2006-10-27
  • 천정고
    2.7m
  • 승강기 대수
    1 대
  • 냉난방 방식
    개별냉난방
  • 주용도
    업무시설
  • 방향(출입구기준)
    동향
  • 주차정보
    방식 : 자주식
    총대수 : 30대
    무료주차 : 1대 / 임대면적 60평
    유료주차 : 월 0원(vat 별도)

위치

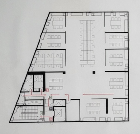
로얄토토빌딩 | 학동역 인테리어 사무실 임대

지상 3층

  • 임대면적
    624.8m² / 189평
  • 전용면적
    380.16m² / 115평
  • 보증금
    30000만원
  • 임대료
    1795만원
  • 관리비
    529만원
  • 무료주차
    3
  • 인테리어
    무상승계
  • 입주시기
    즉시