Building Information

CRI빌딩(구,조선내화) | 선정릉역 랜드마크 사무실 임대

서울 강남구 선릉로 577
  • 규모
    지하 3층 / 지상 12층
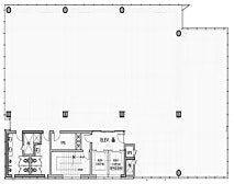
  • 기준층 면적
    임대 182평 / 전용 117평
  • 연면적
    7,973.09m²
  • 전용률
    64.29%
드로잉부동산 정보
전화 상담 : 
01076218737
휴대폰 : 
010-5066-2300
이메일 문의 : 
drawing@drawingoffice.co.kr
주소 : 
서울 강남구 삼성로100길 8, 4F(우경빌딩)
부동산 번호 : 
11680-2024-00318
상호 : 
(주)드로잉부동산중개법인(대표자 : 김민수)

임대 조건

기준 층 전체(전용 117평)
  • 보증금
    357,010,108원
    평당 1,961,594원
  • 임대료
    17,840,004원
    평당 98,022원
  • 관리비
    5,260,164원
    평당 28,902원

빌딩 정보

  • 사용 승인일
    2009-01-29
  • 천정고
    2.8m
  • 승강기 대수
    2 대
  • 냉난방 방식
    개별냉난방
  • 주용도
    업무시설
  • 방향(출입구기준)
    남향
  • 주차정보
    방식 : 자주식
    총대수 : 43대
    무료주차 : 1대 / 임대면적 45평
    유료주차 : 월 200000원(vat 별도)

위치

CRI빌딩(구,조선내화) | 선정릉역 랜드마크 사무실 임대

지상 3층

  • 임대면적
    602m² / 182평
  • 전용면적
    387m² / 117평
  • 보증금
    36237만원
  • 임대료
    1811만원
  • 관리비
    542만원
  • 무료주차
    4
  • 인테리어
    무상승계
  • 입주시기
    즉시
CRI빌딩(구,조선내화) | 선정릉역 랜드마크 사무실 임대

지상 5층

  • 임대면적
    602m² / 182평
  • 전용면적
    387m² / 117평
  • 보증금
    36237만원
  • 임대료
    1811만원
  • 관리비
    542만원
  • 무료주차
    4
  • 인테리어
    무상승계
  • 입주시기
    즉시 협의가능
CRI빌딩(구,조선내화) | 선정릉역 랜드마크 사무실 임대

지상 7층

  • 임대면적
    602m² / 182평
  • 전용면적
    387m² / 117평
  • 보증금
    36237만원
  • 임대료
    1811만원
  • 관리비
    542만원
  • 무료주차
    4
  • 인테리어
    원상복구
  • 입주시기
    즉시 협의가능