Building Information

황화빌딩 | 강남대로 가성비 오피스 임대

서울 강남구 강남대로 320
  • 규모
    지하 6층 / 지상 18층
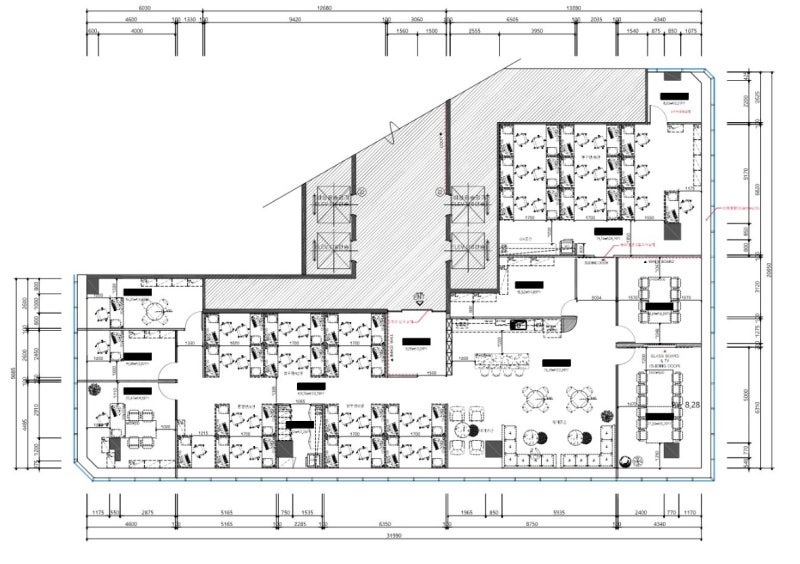
  • 기준층 면적
    임대 296평 / 전용 160평
  • 연면적
    19,933.13m²
  • 전용률
    54.05%
드로잉부동산 정보
전화 상담 : 
02-554-8966
휴대폰 : 
010-5066-2300
이메일 문의 : 
drawing@drawingoffice.co.kr
주소 : 
서울 강남구 삼성로100길 8, 4F(우경빌딩)
부동산 번호 : 
11680-2024-00318
상호 : 
(주)드로잉부동산중개법인(대표자 : 김민수)

임대 조건

기준 층 전체(전용 160평)
  • 보증금
    387,760,000원
    평당 1,310,000원
  • 임대료
    24,568,000원
    평당 83,000원
  • 관리비
    5,920,000원
    평당 20,000원

빌딩 정보

  • 사용 승인일
    1991-12-10
  • 천정고
    2.6m
  • 승강기 대수
    4 대
  • 냉난방 방식
    중앙냉난방
  • 주용도
    업무시설
  • 방향(출입구기준)
    서향
  • 주차정보
    방식 : 자주식
    총대수 : 150대
    무료주차 : 1대 / 임대면적 70평
    유료주차 : 월 150000원(vat 별도)

위치

황화빌딩 | 강남대로 가성비 오피스 임대

지상 3층

  • 임대면적
    757m² / 229평
  • 전용면적
    397m² / 120평
  • 보증금
    30000만원
  • 임대료
    1800만원
  • 관리비
    458만원
  • 무료주차
    4
  • 인테리어
    무상승계
  • 입주시기
    즉시