Building Information

금강빌딩 | 선정릉역 병원 임대

서울 강남구 봉은사로 304
  • 규모
    지하 3층 / 지상 14층
  • 기준층 면적
    임대 90평 / 전용 77평
  • 연면적
    4,993.37m²
  • 전용률
    85.56%
드로잉부동산 정보
전화 상담 : 
01076218737
휴대폰 : 
010-5066-2300
이메일 문의 : 
drawing@drawingoffice.co.kr
주소 : 
서울 강남구 삼성로100길 8, 4F(우경빌딩)
부동산 번호 : 
11680-2024-00318
상호 : 
(주)드로잉부동산중개법인(대표자 : 김민수)

임대 조건

기준 층 전체(전용 77평)
  • 보증금
    149,999,940원
    평당 1,666,666원
  • 임대료
    8,010,000원
    평당 89,000원
  • 관리비
    2,999,970원
    평당 33,333원

빌딩 정보

  • 사용 승인일
    2006-09-13
  • 천정고
    2.8m
  • 승강기 대수
    1 대
  • 냉난방 방식
    개별냉난방
  • 주용도
    업무시설
  • 방향(출입구기준)
    북향
  • 주차정보
    방식 : 기계식
    총대수 : 25대
    무료주차 : 1대 / 임대면적 80평
    유료주차 : 월 0원(vat 별도)

위치

금강빌딩 | 선정릉역 병원 임대

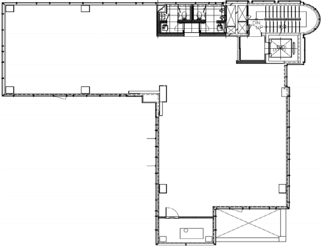
지상 3층

  • 임대면적
    297.46m² / 90평
  • 전용면적
    254.8m² / 77평
  • 보증금
    15000만원
  • 임대료
    800만원
  • 관리비
    297만원
  • 무료주차
    1
  • 인테리어
    원상복구
  • 입주시기
    즉시