Building Information

에피소드강남262 | 뱅뱅사거리 사무실 임대

서울 서초구 강남대로 299
  • 규모
    지하 8층 / 지상 20층
  • 기준층 면적
    임대 401평 / 전용 210평
  • 연면적
    23,306.68m²
  • 전용률
    52.37%
드로잉부동산 정보
전화 상담 : 
02-554-8966
휴대폰 : 
010-5066-2300
이메일 문의 : 
drawing@drawingoffice.co.kr
주소 : 
서울 강남구 삼성로100길 8, 4F(우경빌딩)
부동산 번호 : 
11680-2024-00318
상호 : 
(주)드로잉부동산중개법인(대표자 : 김민수)

임대 조건

기준 층 전체(전용 210평)
  • 보증금
    472,907,320원
    평당 1,179,320원
  • 임대료
    47,290,732원
    평당 117,932원
  • 관리비
    15,760,102원
    평당 39,302원

빌딩 정보

  • 사용 승인일
    2021-11-22
  • 천정고
    2.7m
  • 승강기 대수
    6 대
  • 냉난방 방식
    중앙냉난방
  • 주용도
    업무시설
  • 방향(출입구기준)
    남향
  • 주차정보
    방식 : 자주식
    총대수 : 173대
    무료주차 : 1대 / 임대면적 100평
    유료주차 : 월 0원(vat 별도)

위치

에피소드강남262 | 뱅뱅사거리 사무실 임대

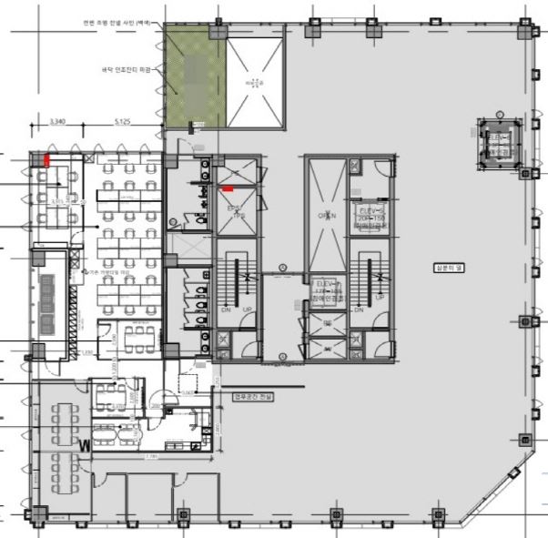
지상 4층

  • 임대면적
    1327m² / 401.4평
  • 전용면적
    695m² / 210.3평
  • 보증금
    47332만원
  • 임대료
    4733만원
  • 관리비
    1576만원
  • 무료주차
    4
  • 인테리어
    원상복구
  • 입주시기
    협의가능