Building Information

LG마포빌딩 | 공덕역 사무실 임대

서울 마포구 마포대로 155
  • 규모
    지하 4층 / 지상 17층
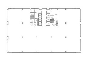
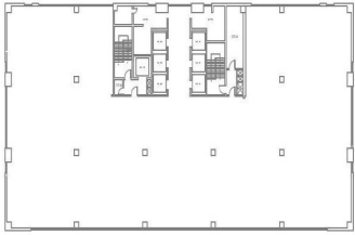
  • 기준층 면적
    임대 632.62평 / 전용 339.81평
  • 연면적
    28,327.00m²
  • 전용률
    53.71%
드로잉부동산 정보
전화 상담 : 
02-554-8966
휴대폰 : 
010-5066-2300
이메일 문의 : 
drawing@drawingoffice.co.kr
주소 : 
서울 강남구 삼성로100길 8, 4F(우경빌딩)
부동산 번호 : 
11680-2024-00318
상호 : 
(주)드로잉부동산중개법인(대표자 : 김민수)

임대 조건

기준 층 전체(전용 340평)
  • 보증금
    253,048,000원
    평당 400,000원
  • 임대료
    32,579,930원
    평당 51,500원
  • 관리비
    22,268,224원
    평당 35,200원

빌딩 정보

  • 사용 승인일
    1987-11-04
  • 천정고
    2.6m
  • 승강기 대수
    7 대
  • 냉난방 방식
    중앙냉난방
  • 주용도
    업무시설
  • 방향(출입구기준)
    남향
  • 주차정보
    방식 : 자주식
    총대수 : 190대
    무료주차 : 1대 / 임대면적 70평
    유료주차 : 월 200000원(vat 별도)

위치

LG마포빌딩 | 공덕역 사무실 임대

지상 3층

  • 임대면적
    641m² / 194평
  • 전용면적
    327m² / 99평
  • 보증금
    7799만원
  • 임대료
    1004만원
  • 관리비
    686만원
  • 무료주차
    2
  • 인테리어
    원상복구
  • 입주시기
    즉시
LG마포빌딩 | 공덕역 사무실 임대

지상 4층

  • 임대면적
    2116m² / 640평
  • 전용면적
    1074m² / 325평
  • 보증금
    25624만원
  • 임대료
    3299만원
  • 관리비
    2254만원
  • 무료주차
    9
  • 인테리어
    원상복구
  • 입주시기
    즉시