Building Information

KONER(코너빌딩) | 홍대 사무실 임대

서울 마포구 양화로 136
  • 규모
    지하 6층 / 지상 12층
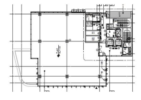
  • 기준층 면적
    임대 164.93평 / 전용 129.3평
  • 연면적
    13,274.00m²
  • 전용률
    78.4%
드로잉부동산 정보
전화 상담 : 
02-554-8966
휴대폰 : 
010-5066-2300
이메일 문의 : 
drawing@drawingoffice.co.kr
주소 : 
서울 강남구 삼성로100길 8, 4F(우경빌딩)
부동산 번호 : 
11680-2024-00318
상호 : 
(주)드로잉부동산중개법인(대표자 : 김민수)

임대 조건

기준 층 전체(전용 129평)
  • 보증금
    184,721,600원
    평당 1,120,000원
  • 임대료
    18,472,160원
    평당 112,000원
  • 관리비
    6,102,410원
    평당 37,000원

빌딩 정보

  • 사용 승인일
    2024-09-01
  • 천정고
    3m
  • 승강기 대수
    0 대
  • 냉난방 방식
    중앙냉난방
  • 주용도
    업무시설,근린생활시설
  • 방향(출입구기준)
    북향
  • 주차정보
    방식 : 자주식
    총대수 : 112대
    무료주차 : 1대 / 임대면적 50평
    유료주차 : 월 200000원(vat 별도)

위치