Building Information

백영논현센터 | 학동역 신축 오피스 임대

서울 강남구 학동로 231
  • 규모
    지하 4층 / 지상 10층
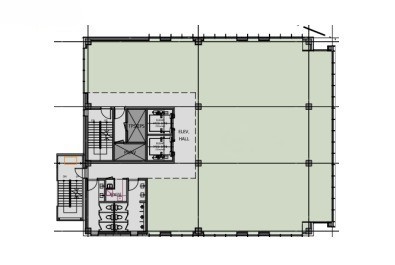
  • 기준층 면적
    임대 284.18평 / 전용 129.26평
  • 연면적
    11,748.00m²
  • 전용률
    45.49%
드로잉부동산 정보
전화 상담 : 
02-554-8966
휴대폰 : 
010-5066-2300
이메일 문의 : 
drawing@drawingoffice.co.kr
주소 : 
서울 강남구 삼성로100길 8, 4F(우경빌딩)
부동산 번호 : 
11680-2024-00318
상호 : 
(주)드로잉부동산중개법인(대표자 : 김민수)

임대 조건

기준 층 전체(전용 129평)
  • 보증금
    326,807,000원
    평당 1,150,000원
  • 임대료
    32,680,700원
    평당 115,000원
  • 관리비
    8,525,400원
    평당 30,000원

빌딩 정보

  • 사용 승인일
    2023-10-01
  • 천정고
    2.6m
  • 승강기 대수
    3 대
  • 냉난방 방식
    중앙냉난방
  • 주용도
    업무시설
  • 방향(출입구기준)
    남향
  • 주차정보
    방식 : 자주식
    총대수 : 77대
    무료주차 : 1대 / 임대면적 120평
    유료주차 : 월 200000원(vat 별도)

위치

백영논현센터 | 학동역 신축 오피스 임대

지상 1층

  • 임대면적
    944m² / 285.5평
  • 전용면적
    433m² / 131평
  • 보증금
    51400만원
  • 임대료
    5140만원
  • 관리비
    860만원
  • 무료주차
    2
  • 인테리어
    원상복구
  • 입주시기
    즉시
백영논현센터 | 학동역 신축 오피스 임대

지상 4층

  • 임대면적
    931m² / 281.5평
  • 전용면적
    427m² / 129.3평
  • 보증금
    32400만원
  • 임대료
    3240만원
  • 관리비
    840만원
  • 무료주차
    2
  • 인테리어
    원상복구
  • 입주시기
    즉시
백영논현센터 | 학동역 신축 오피스 임대

지상 4층

  • 임대면적
    831m² / 251.5평
  • 전용면적
    427m² / 129.3평
  • 보증금
    32400만원
  • 임대료
    3240만원
  • 관리비
    840만원
  • 무료주차
    2
  • 인테리어
    원상복구
  • 입주시기
    즉시