Building Information

DS타워 | 강남역 병원 임대

서울 서초구 강남대로 411
  • 규모
    지하 3층 / 지상 16층
  • 기준층 면적
    임대 158.79평 / 전용 96.89평
  • 연면적
    8,519.00m²
  • 전용률
    61.02%
드로잉부동산 정보
전화 상담 : 
01076218737
휴대폰 : 
010-5066-2300
이메일 문의 : 
drawing@drawingoffice.co.kr
주소 : 
서울 강남구 삼성로100길 8, 4F(우경빌딩)
부동산 번호 : 
11680-2024-00318
상호 : 
(주)드로잉부동산중개법인(대표자 : 김민수)

임대 조건

기준 층 전체(전용 97평)
  • 보증금
    9,142,175원
    평당 57,574원
  • 임대료
    5,167,503원
    평당 32,543원
  • 관리비
    5,439,351원
    평당 34,255원

빌딩 정보

  • 사용 승인일
    2023-01-20
  • 천정고
    3.5m
  • 승강기 대수
    3 대
  • 냉난방 방식
    개별냉난방
  • 주용도
    제1종근린생활시설(의원), 판매시설
  • 방향(출입구기준)
    동향
  • 주차정보
    방식 : 기계식
    총대수 : 31대
    무료주차 : 1대 / 임대면적 159평
    유료주차 : 월 0원(vat 별도)

위치

DS타워 | 강남역 병원 임대

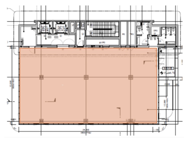
지상 16층전체층

  • 임대면적
    525m² / 158.79평
  • 전용면적
    320m² / 96.89평
  • 보증금
    41856만원
  • 임대료
    3488만원
  • 관리비
    484만원
  • 무료주차
    1
  • 인테리어
    원상복구
  • 입주시기
    즉시